
Occupier Events
Occupiers at The Shard benefit from a diverse calendar of free events, ranging from cultural celebrations, interactive workshops and retail days.
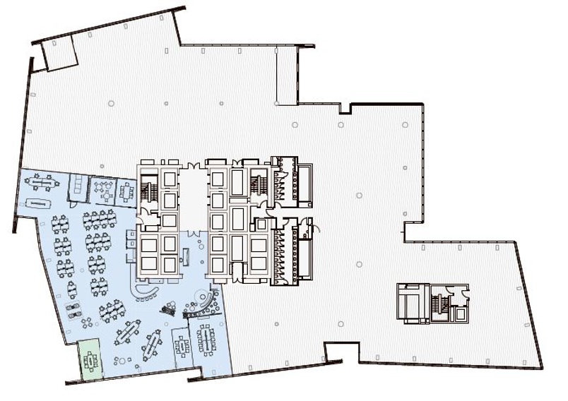
New fully fitted, CAT B office space
7,977 SQ FT (741 SQ M)
Level 7 offers 7,977 SQ FT (741 SQ M) of newly refurbished and fully fitted open plan office space on the south side of The Shard, featuring stunning views of London. Floor-to-ceiling glazing floods the floor with an abundance of daylight and the naturally-ventilated Winter Gardens allow occupiers to enjoy contact with the world outside within the elegance of the building's structure.

The Shard has been certified with a Platinum rating from Wiredscore.
WiredScore’s highest-awarded mark proves that The Shard meets exceptional standards for the quality of its wired infrastructure, resilience, and wireless network.
In addition the building offers a choice of 7 unique sources of high-speed wireline fibre connectivity including BT Openreach, Colt, Vodafone, Level 3, Verizon, Virgin and Zayo.



Our commercial property experts combine commercial acumen and innovate strategies with expert market knowledge.

